岡山県倉敷市 連島町鶴新田 新築戸建新築戸建
物件写真
物件詳細
リーブルガーデン倉敷市連島町鶴新田第2 2号棟
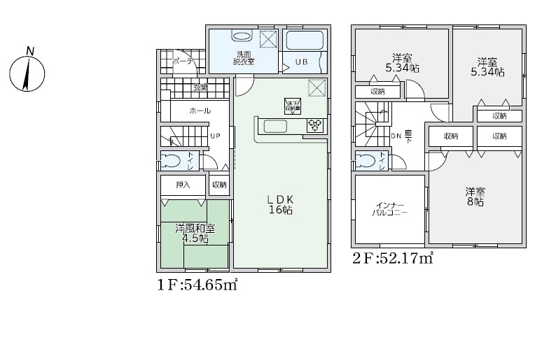
| 物件種別 | 新築戸建 | 間取り | 4LDK |
|---|---|---|---|
| 価格 | 1980万円 | 建築年月 | 2023/12 |
| 建物構造 | 木造 | 階数(地下) | 地上2階 |
| 土地面積(区画面積) | 155.90m² | 土地権利 | 所有権 |
| 用途地域 | 第一種中高層住居専用 | 都市計画 | 市街化区域 |
| 現況 | 引渡・入居時期 | ||
| セットバック | 私道負担 | ||
| 間取り内訳 | 1階LDK16畳1室 1階和室4.5畳1室 2階洋室5.34畳2室 2階洋室8畳1室 |
||
| 周辺環境 | |||
| 設備・条件 | ガスコンロ 三口コンロ システムキッチン カウンターキッチン 独立洗面台 浴室乾燥機 床下収納 TVドアホン 都市ガス バルコニー | ||
| 小学校 | 連島南小学校 | 中学校 | 連島南中学校 |
| 物件番号 | KSH23027 | 情報有効期限 | |
MAP情報
Loading...




